Mehrgenerationen-Fertighäuser

Mehrgenerationenhaus Fertighaus: SH 202 S EW

nächstes Fertighaus
Mehrgenerationenhaus Stadtvilla SH 202 S EW - Variante A
Mehrgenerationenhaus Stadtvilla SH 202 S EW - Variante A
qm-we_110-sh202sewvara
qm-we_111-sh202sewvarb
Fertighaus Mehrgenerationenhaus SH 202 S Einliegerwohnung
Fertighaus Mehrgenerationenhaus SH 202 S EW
Fertighaus Mehrgenerationenhaus SH 202 S Einliegerwohnung
Fertighaus Mehrgenerationenhaus SH 202 S EW

Abgebildete Häuser und Grundrisse können Sonderbauteile (z.B. Gaube, Erker) und -ausstattungen (z.B. Rollläden, zusätzliche Fenster) enthalten, Farbabweichungen sind möglich.

Beschreibung

Gemeinsames Wohnen in einer mondänen Stadtvilla

Sie suchen ein Haus, das Platz für die ganze Familie bietet und auch noch eine Einliegerwohnung für Oma und Opa oder als zusätzliche Mieteinnahme hat? Unser Mehrgenerationenhaus SH 202 S EW mit zwei Vollgeschossen ist ein wahres Raumwunder und zeigt zwei Grundrissvarianten A und B, wobei die Größe der Einliegerwohnung die Gestaltung der restlichen Räumlichkeiten bestimmt.

Variante A bietet auf jeder Ebene zwei großzügige Wohneinheiten mit jeweils vier Zimmern und genügend Platz für die individuellen Bedürfnisse Ihrer Familie. Die Wohnungen sind perfekt aufgeteilt und bieten viel Freiraum für ein harmonisches Zusammenleben.

Variante B zeigt eine Wohnung über zwei Ebenen mit fünf (beinahe sechs) Zimmern und einer Wohnfläche von 156 m². Hier gibt es genug Platz für die größere Familie oder für Menschen, die einfach mehr Raum benötigen. Zusätzlich gibt es im Erdgeschoss eine Einliegerwohnung mit zwei Zimmern auf 45 m² und separatem Eingang, die sich perfekt für Großeltern, Gäste oder als zusätzliche Mieteinnahme eignet.

Die Stadtvilla der Kategorie Mehrgenerationenhaus ist perfekt auf die Bedürfnisse von Familien zugeschnitten und bietet genug Platz für alle. Die hochwertige Bauweise und die modernen Materialien garantieren eine hohe Energieeffizienz und niedrige Betriebskosten.

Überzeugen Sie sich selbst von unserem Mehrgenerationenhaus SH 202 S EW und schaffen Sie sich ein Zuhause für die ganze Familie!

Grundrissbeispiele

Bei ScanHaus Marlow haben bereits viele Haustypen mehrere Grundrissvarianten. Sollte Ihnen keine Variante zusprechen, ist es selbstverständlich möglich den Grundriss nach Ihren individuellen Wünschen und Bedürfnissen in Abstimmung mit unseren Architekten anzupassen.

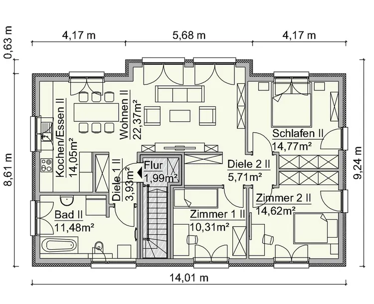
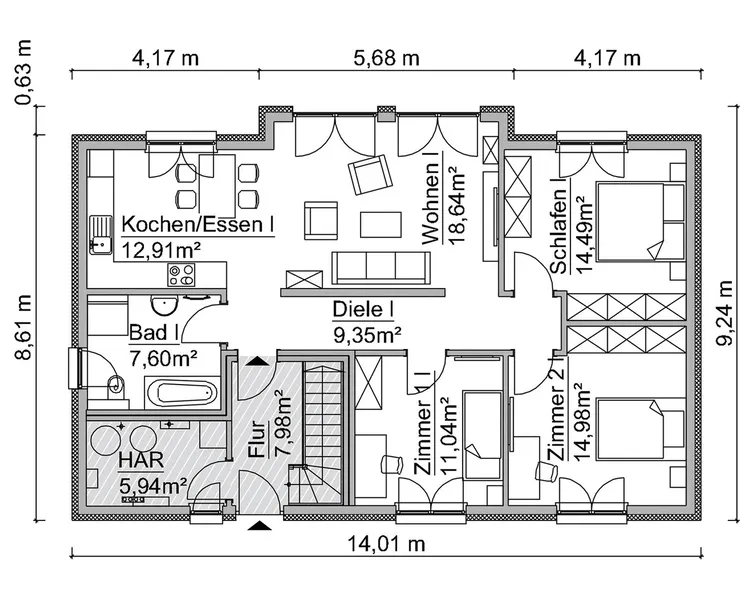
Grundrissbeispiel SH 202 S EW - VAR. A
  • Mehrgenerationenhaus
  • 202,16 m² Wohn- u. Nutzfläche
  • 199,01 m² Wohn- u. Nutzfläche nach WoFIV
  • 4 + 4 Zimmer
  • WE I mit 89,00 m² und WE II mit 97,25 m² Wohn- u. Nutzfläche
Erdgeschoss
generationenhaus-grundriss-sh202sew-a-eg-a1d18043
Obergeschoss
generationenhaus-grundriss-sh202sew-a-og-2711cc73
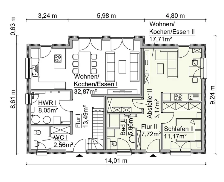
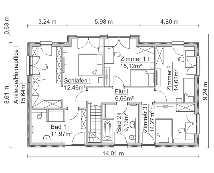
Grundrissbeispiel SH 202 S EW - VAR. B
  • Mehrgenerationenhaus
  • 202,57 m² Wohn- u. Nutzfläche
  • 199,35 m² Wohn- u. Nutzfläche nach WoFIV
  • 5 + 2 Zimmer
  • WE I mit 156,85 m² und WE II mit 45,72 m² Wohn- u. Nutzfläche
Erdgeschoss
generationenhaus-grundriss-sh202sew-b-eg-96822620
Obergeschoss
generationenhaus-grundriss-sh202sew-b-og-3aa3202e

Jetzt informieren: Aktuelle Themen aus unserem Hausbauratgeber

Berater vor Ort

Berater in Ihrer Nähe finden

Sie erreichen unsere fachkundigen Hausverkäufer deutschlandweit in über 50 Musterhäuser und Vertriebsbüros, welche gern Ihre ganz persönlichen Wünsche und Fragen beantworten.

Kostenfrei Fertighaus Katalog bestellen

Bestellen Sie kostenlos und unverbindlich unseren Hauskatalog für Ihr Traumhaus und erfahren Sie alles über ScanHaus Marlow.

Jetzt bestellen