Mehrgenerationen-Fertighäuser

Mehrgenerationenhaus Fertighaus: SH 165 EW

nächstes Fertighaus
Fertighaus Mehrgenerationenhaus 1,5-Geschosser SH 165 EW - Var. B
Fertighaus Mehrgenerationenhaus 1,5-Geschosser SH 165 EW - Var. B
qm-we_15-sh165ewvara
qm-we_16-sh165ewvarb
Fertighaus Mehrgenerationenhaus SH 165 EW - VAR. B mit Einliegerwohnung
Fertighaus Mehrgenerationenhaus SH 165 EW - VAR. B
Fertighaus Mehrgenerationenhaus SH 165 EW Var. A mit Hanglage
Fertighaus Mehrgenerationenhaus SH 165 EW Var. A mit Hanglage
Fertighaus Mehrgenerationenhaus SH 165 EW mit Einliegerwohnung
Fertighaus Mehrgenerationenhaus SH 165 EW
Fertighaus Mehrgenerationenhaus SH 165 EW mit Einliegerwohnung
Fertighaus Mehrgenerationenhaus SH 165 EW
Fertighaus Mehrgenerationenhaus SH 165 EW mit Einliegerwohnung
Fertighaus Mehrgenerationenhaus SH 165 EW

Abgebildete Häuser und Grundrisse können Sonderbauteile (z.B. Gaube, Erker) und -ausstattungen (z.B. Rollläden, zusätzliche Fenster) enthalten, Farbabweichungen sind möglich.

Beschreibung

"Come Together"!

Das SH 165 EW zeigt mit zwei Varianten, was auf 165 m² Wohn- und Nutzfläche zum Thema Mehrgenerationen alles möglich ist. Variante A bietet jeweils eine Drei-Zimmer-Lösung für die Haupt- als auch Einliegerwohnung. Dabei nimmt jede Wohnung eine Ebene mit jeweils separatem Eingang ein.

Bei Variante B gelangt man über einen überdachten Hauseingang in die Fünf-Zimmer-Wohnung mit ihren insgesamt 132 m². Hier erwarten Sie ebenerdig der offene Wohn-, Ess- und Kochbereich, das Gäste-WC sowie der Hauswirtschaftsraum. Im Dachgeschoss lädt ein weiterer offener Wohnbereich - dank der großzügigen Trapezgaube mit viel Tageslicht – zum Verweilen ein. Zwei weitere Zimmer, ein Schlafzimmer sowie ein großes Bad ergänzen das Raumangebot auf dieser Ebene. Die Zwei-Zimmer-Einliegerwohnung mit eigenem giebelseitigen Hauseingang ist in der linken Haushälfte ebenerdig angeordnet.

Grundrissbeispiele

Bei ScanHaus Marlow haben bereits viele Haustypen mehrere Grundrissvarianten. Sollte Ihnen keine Variante zusprechen, ist es selbstverständlich möglich den Grundriss nach Ihren individuellen Wünschen und Bedürfnissen in Abstimmung mit unseren Architekten anzupassen.

Grundrissbeispiel SH 165 EW - VAR. A
  • Mehrgenerationenhaus
  • 162,93 m² Wohn- u. Nutzfläche
  • 142,58 m² Wohn- u. Nutzfläche nach WoFIV
  • 3 + 3 Zimmer
  • WE I mit 77,89 m² und WE II mit 85,18 m² Wohn- u. Nutzfläche
Erdgeschoss
generationenhaus-grundriss-sh165ew-a-eg-9a40ee00
Dachgeschoss
generationenhaus-grundriss-sh165ew-a-dg-df7d1373
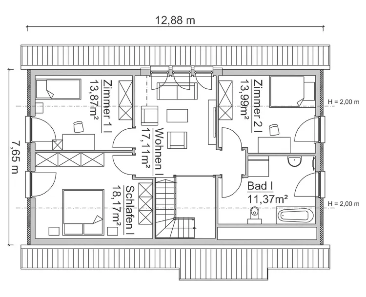
Grundrissbeispiel SH 165 EW - VAR. B
  • Mehrgenerationenhaus
  • 164,87 m² Wohn- u. Nutzfläche
  • 142,68 m² Wohn- u. Nutzfläche nach WoFIV
  • 5 + 2 Zimmer
  • WE I mit 132,01m² und WE II mit 32,86 m² Wohn- u. Nutzfläche
Erdgeschoss
generationenhaus-grundriss-sh165ew-b-eg-34ed02dd
Dachgeschoss
generationenhaus-grundriss-sh165ew-b-dg-86d2d20b

Jetzt informieren: Aktuelle Themen aus unserem Hausbauratgeber

Berater vor Ort

Berater in Ihrer Nähe finden

Sie erreichen unsere fachkundigen Hausverkäufer deutschlandweit in über 50 Musterhäuser und Vertriebsbüros, welche gern Ihre ganz persönlichen Wünsche und Fragen beantworten.

Kostenfrei Fertighaus Katalog bestellen

Bestellen Sie kostenlos und unverbindlich unseren Hauskatalog für Ihr Traumhaus und erfahren Sie alles über ScanHaus Marlow.

Jetzt bestellen