header-mh-bad-vilbel2.jpg

Mehrgenerationenhaus Fertighaus: SH 137 WB EW

nächstes Fertighaus
Mehrgenerationenhaus Winkelbungalow SH 137 WB EW
Mehrgenerationenhaus Winkelbungalow SH 137 WB EW
qm-we_12-sh137wbew

Abgebildete Häuser und Grundrisse können Sonderbauteile (z.B. Gaube, Erker) und -ausstattungen (z.B. Rollläden, zusätzliche Fenster) enthalten, Farbabweichungen sind möglich.

Beschreibung

Mehrgenerationenhäuser - Gemeinsam Wohnen

Warum soll es eigentlich nicht möglich sein, mehrere Generationen auf einer Ebene unter einem Dach unterzubringen? Unsere überzeugende Antwort ist hier das SH 137 WB EW – ein ebenso optisch ansprechender wie grundrissseitig durchdachter Winkelbungalow mit Zwei-Zimmer-Einliegerwohnung. Die Hauptwohnung bietet eine Drei-Zimmer-Lösung inklusive großem Vollbad. Das Besondere: Hier verfügen Jung und Alt jeweils über separate Wohnbereiche, die über einen gemeinsamen Flur erreichbar sind.

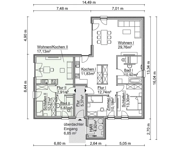
Grundrissbeispiel

Bei ScanHaus Marlow haben bereits viele Haustypen mehrere Grundrissvarianten. Sollte Ihnen keine Variante zusprechen, ist es selbstverständlich möglich den Grundriss nach Ihren individuellen Wünschen und Bedürfnissen in Abstimmung mit unseren Architekten anzupassen.

Grundrissbeispiel SH 137 WB EW
  • Mehrgenerationenhaus
  • 142,02 m² Wohn- u. Nutzfläche
  • 135,17 m² Wohn- u. Nutzfläche nach WoFIV
  • 3 + 2 Zimmer
  • WE I mit 88,74 m² und WE II mit 36,14 m² Wohn- u. Nutzfläche
  • gemeinsame Nutzfläche: 17,14 m²
Erdgeschoss
generationenhaus-grundriss-sh137wb-ew-da01c466

Jetzt informieren: Aktuelle Themen aus unserem Hausbauratgeber

Berater vor Ort

Berater in Ihrer Nähe finden

Sie erreichen unsere fachkundigen Hausverkäufer deutschlandweit in über 50 Musterhäuser und Vertriebsbüros, welche gern Ihre ganz persönlichen Wünsche und Fragen beantworten.

Kostenfrei Fertighaus Katalog bestellen

Bestellen Sie kostenlos und unverbindlich unseren Hauskatalog für Ihr Traumhaus und erfahren Sie alles über ScanHaus Marlow.

Jetzt bestellen