Fertighaus Küche

Doppelhaus Fertighaus: SH 122 S DHH EW

nächstes Fertighaus
Doppelhaus mit Einliegerwohnung SH 122 S DHH EW
Doppelhaus mit Einliegerwohnung SH 122 S DHH EW
Wohneinheiten je Doppelhaushälfte mit Einliegerwohnung

Abgebildete Häuser und Grundrisse können Sonderbauteile (z.B. Gaube, Erker) und -ausstattungen (z.B. Rollläden, zusätzliche Fenster) enthalten, Farbabweichungen sind möglich.

Beschreibung

Vier Leben. Ein starkes Konzept.

Dieses Doppelhaus im eleganten Stadtvillastil schafft Raum für vier eigenständige Wohneinheiten – verteilt auf zwei Haushälften mit jeweils zwei Vollgeschossen. Ein sorgfältig geplantes Raumkonzept, das Privatsphäre, Flexibilität und Wohnkomfort auf hohem Niveau verbindet.

Im Erdgeschoss befindet sich pro Hälfte eine kompakte 2‑Zimmer-Wohnung (ca. 44 m²): barrierearm, offen gestaltet und mit direktem Zugang zum Garten. Wohnraum und Schlafzimmer sind offen verbunden und bieten maximale Wohnqualität auf kleiner Grundfläche. Im Obergeschoss erwartet Sie auch pro Doppelhaushälfte eine großzügige 3-Zimmer-Wohnung mit fast 56 m²: lichtdurchflutet, familienfreundlich, perfekt aufgeteilt. Der offene Wohn-/Ess-/Kochbereich lädt zum Zusammensein ein, zwei Schlafzimmer und ein modernes Bad runden das Raumgefühl ab.

Der gemeinsame Flur und der Hausanschlussraum sind intelligent zentralisiert, sodass jede Einheit ihre Privatsphäre behält – und dennoch Teil eines harmonischen Ganzen ist. Mit rund 119 m² Gesamtfläche pro Haushälfte entsteht ein Zuhause, das viele Lebensmodelle vereint: für Familien, Paare, Senioren oder zur Vermietung.

Ein Doppelhaus. Zwei Ebenen. Vier Lebensmodelle. Und Raum für echte Wohnqualität.

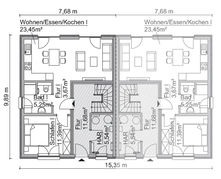
Grundrissbeispiel

Bei ScanHaus Marlow haben bereits viele Haustypen mehrere Grundrissvarianten. Sollte Ihnen keine Variante zusprechen, ist es selbstverständlich möglich den Grundriss nach Ihren individuellen Wünschen und Bedürfnissen in Abstimmung mit unseren Architekten anzupassen.

SH 122 S DHH EW
  • Doppelhaus
  • 118,98 m² Wohn- u. Nutzfläche
  • 115,61 m² Wohn- u. Nutzfläche nach WoFIV
  • 2 + 3 Zimmer
  • WE I mit 43,76 m² und WE II mit 55,90 m² Wohn- u. Nutzfläche je Doppelhaushälfte
  • gemeinsame Nutzfläche: 19,32 m²
Erdgeschoss
doppelhaus-grundriss-sh-122-s-dhh-ew_eg-bc19f9bc
Obergeschoss
doppelhaus-grundriss-sh-122-s-dhh-ew_og-cc1bf7de

Jetzt informieren: Aktuelle Themen aus unserem Hausbauratgeber

Berater vor Ort

Berater in Ihrer Nähe finden

Sie erreichen unsere fachkundigen Hausverkäufer deutschlandweit in über 50 Musterhäuser und Vertriebsbüros, welche gern Ihre ganz persönlichen Wünsche und Fragen beantworten.

Kostenfrei Fertighaus Katalog bestellen

Bestellen Sie kostenlos und unverbindlich unseren Hauskatalog für Ihr Traumhaus und erfahren Sie alles über ScanHaus Marlow.

Jetzt bestellen