Doppelhaus Fertighaus: SH 122 DHH EW
nächstes FertighausAbgebildete Häuser und Grundrisse können Sonderbauteile (z.B. Gaube, Erker) und -ausstattungen (z.B. Rollläden, zusätzliche Fenster) enthalten, Farbabweichungen sind möglich.
Beschreibung
Doppelhaus als Investitionsobjekt?
Willkommen bei unserer Doppelhaushälfte mit je einer Wohneinheit je Ebene. Jede Wohnung verfügt über zwei Zimmer, darunter einen Allraum für Wohnen, Essen und Kochen. Das Bad ist entweder mit einer Dusche oder einer Badewanne ausgestattet und bietet Ihnen die Möglichkeit, sich nach einem langen Tag zu entspannen. Wenn Sie als Single oder Paar auf der Suche nach einem neuen Zuhause sind, das Sie mit jemand anderen teilen möchten oder einfach eine Investitionsmöglichkeit suchen, dann ist diese Doppelhaushälfte genau das Richtige für Sie.
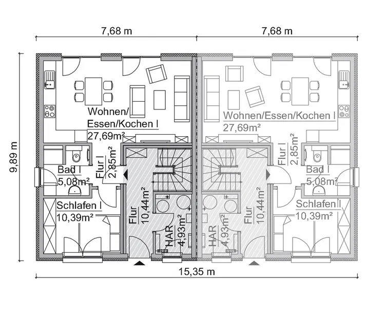
Grundrissbeispiel
Bei ScanHaus Marlow haben bereits viele Haustypen mehrere Grundrissvarianten. Sollte Ihnen keine Variante zusprechen, ist es selbstverständlich möglich den Grundriss nach Ihren individuellen Wünschen und Bedürfnissen in Abstimmung mit unseren Architekten anzupassen.
 
   
													 
													 
												 
	
											 
													 
													 
												 
	
											 
												 
	
											 
   
	 
   
	 
	
	 
						 
						 
	 
	 
	 
	 
	