Doppelhaus Fertighaus: SH 122 DHH EW - Var. B
nächstes FertighausAbgebildete Häuser und Grundrisse können Sonderbauteile (z.B. Gaube, Erker) und -ausstattungen (z.B. Rollläden, zusätzliche Fenster) enthalten, Farbabweichungen sind möglich.
Beschreibung
Doppelhaus mit vier Wohneinheiten
Das Doppelhaus mit Einliegerwohnung SH 122 DHH EW in der Variante B bietet Ihnen zusätzlichen Komfort und Raum für Individualität. Es verfügt über je zwei Wohneinheiten pro Haushälfte, die in etwa ähnlich groß geschnitten sind.
Diese Variante beeindruckt mit einem eleganten Frontspieß, der nicht nur architektonische Akzente setzt, sondern auch zusätzlichen Wohnraum schafft. Beide Wohneinheiten überzeugen durch großzügigere Bäder, die jetzt noch mehr Raum für Entspannung bieten. In den Wohneinheiten im Dachgeschoss haben wir moderne Duschen integriert, die Ihnen einen frischen Start in den Tag ermöglichen. Ein besonderes Highlight ist die halbgewendelte Treppe, die nun anders angeordnet ist und damit nicht nur optisch, sondern auch funktional neue Maßstäbe setzt.
Ob als eigenes Zuhause oder als Investitionsobjekt – diese Doppelhaushälfte bietet die perfekte Kombination aus Stil, Funktionalität und modernem Wohnen. Perfekt für Singles, Paare oder als Kapitalanlage – entdecken Sie die Vorteile von Variante B!
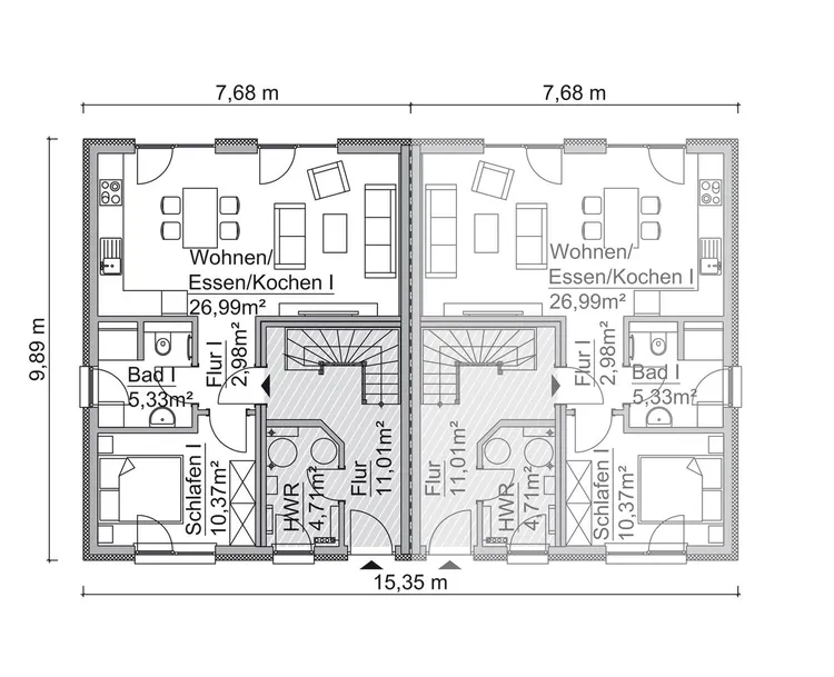
Grundrissbeispiel
Bei ScanHaus Marlow haben bereits viele Haustypen mehrere Grundrissvarianten. Sollte Ihnen keine Variante zusprechen, ist es selbstverständlich möglich den Grundriss nach Ihren individuellen Wünschen und Bedürfnissen in Abstimmung mit unseren Architekten anzupassen.
 
   
													 
													 
												 
	
											 
													 
													 
												 
	
											 
												 
	
											 
   
	 
   
	 
	
	 
						 
						 
	 
	 
	 
	 
	