Bungalow Fertighaus: SH 115 WB XXL - VAR. B
nächstes Fertighaus 
  Abgebildete Häuser und Grundrisse können Sonderbauteile (z.B. Gaube, Erker) und -ausstattungen (z.B. Rollläden, zusätzliche Fenster) enthalten, Farbabweichungen sind möglich.
Beschreibung
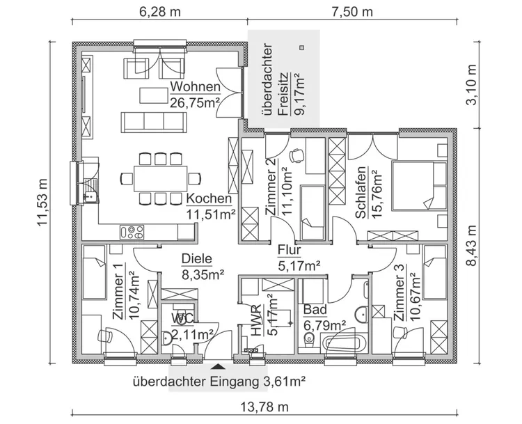
Die Variante B unterscheidet sich im Vergleich zur Variante A des SH 115 WB XXL durch eine überdachte Freifläche. Die Anordnung der 5 Zimmer ist bei beiden Varianten grundverschieden - ein genaues Studieren lohnt sich. Beiden gemein ist der überdachte Hauseingang als auch das beliebte Gäste-WC - alles auf 127 m² Wohnfläche.
Grundrissbeispiel
Bei ScanHaus Marlow haben bereits viele Haustypen mehrere Grundrissvarianten. Sollte Ihnen keine Variante zusprechen, ist es selbstverständlich möglich den Grundriss nach Ihren individuellen Wünschen und Bedürfnissen in Abstimmung mit unseren Architekten anzupassen.
 
   
													 
													 
												 
	
											 
													 
													 
												 
	
											 
												 
	
											 
   
	 
   
	 
	
	 
						 
						 
   
	 
	 
	 
						 
						 
						 
						 
				
					 
				
					 
				
					 
				
					 
				
					 
				
					 
				
					 
				
					 
				
					 
				
					 
				
					 
				
					 
				
					 
				
					 
				
					 
				
					 
				
					 
				
					 
				
					 
				
					 
				
					 
				
					 
				
					 
				
					 
				
					 
				
					 
				
					 
				
					 
				
					 
				
					 
				
					 
				
					 
				
					 
				
					 
				
					 
				
					 
									 
	 
	 
	 
	