1,5-Geschosser Fertighaus

1,5-Geschosser Fertighaus: SH 122 Drempel - VAR. A1

nächstes Fertighaus
Fertighaus 1,5-Geschosser SH 122 Drempel - Var. A1
Fertighaus 1,5-Geschosser SH 122 Drempel - Var. A1
kniestock-1500x940_1_sh-122-d-var-a1.jpg
Fertighaus Einfamilienhaus SH 122 Drempel - Var. A1 hoher Kniestock
Fertighaus 1,5 Geschosser SH 122 Drempel - Var. A1
Fertighaus Einfamilienhaus SH 122 Drempel - Var. A hoher Kniestock
Fertighaus 1, 5 Geschosser SH 122 Drempel - Var. A

Abgebildete Häuser und Grundrisse können Sonderbauteile (z.B. Gaube, Erker) und -ausstattungen (z.B. Rollläden, zusätzliche Fenster) enthalten, Farbabweichungen sind möglich.

Beschreibung

Klassiker mit 1,49 m Drempel

Das SH 122 D – Var. A1 überzeugt mit insgesamt vier Zimmern und einem über Eck gestalteten Wohn-, Ess- und Kochbereich im Erdgeschoss, der Offenheit und Geborgenheit zugleich schafft. Der Drempel von 1,49 m Höhe bietet mehr Platz unter der Dachschräge für die ganze Familie. Im Dachgeschoss erwartet Sie ein schönes Vollbad mit Dusche und Wanne sowie drei zusätzliche Zimmer. Die gesamte Wohnfläche kann so optimal genutzt werden.

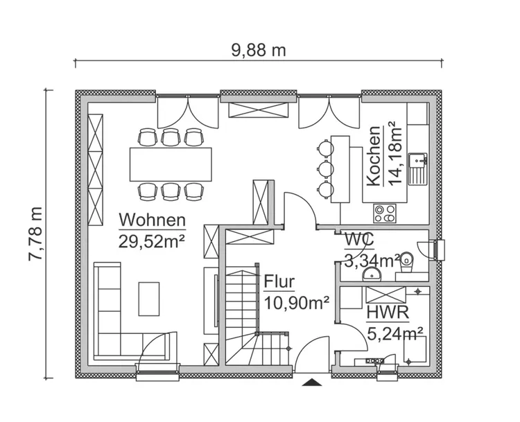
Grundrissbeispiel

Bei ScanHaus Marlow haben bereits viele Haustypen mehrere Grundrissvarianten. Sollte Ihnen keine Variante zusprechen, ist es selbstverständlich möglich den Grundriss nach Ihren individuellen Wünschen und Bedürfnissen in Abstimmung mit unseren Architekten anzupassen.

Grundrissbeispiel SH 122 Drempel - VAR. A1
  • 1,5-Geschosser
  • 120,71 m² Wohn- u. Nutzfläche
  • 112,21 m² Wohn- u. Nutzfläche nach WoFIV
  • 4 Zimmer
Erdgeschoss
geschosser-grundriss-sh122d-a1-eg-e8a3cf93
Dachgeschoss
geschosser-grundriss-sh122d-a1-og-2dfc08cb

Jetzt informieren: Aktuelle Themen aus unserem Hausbauratgeber

Berater vor Ort

Berater in Ihrer Nähe finden

Sie erreichen unsere fachkundigen Hausverkäufer deutschlandweit in über 50 Musterhäuser und Vertriebsbüros, welche gern Ihre ganz persönlichen Wünsche und Fragen beantworten.

Kostenfrei Fertighaus Katalog bestellen

Bestellen Sie kostenlos und unverbindlich unseren Hauskatalog für Ihr Traumhaus und erfahren Sie alles über ScanHaus Marlow.

Jetzt bestellen