1,5-Geschosser Fertighaus: SH 122 - VAR. B1 + D + E
nächstes FertighausAbgebildete Häuser und Grundrisse können Sonderbauteile (z.B. Gaube, Erker) und -ausstattungen (z.B. Rollläden, zusätzliche Fenster) enthalten, Farbabweichungen sind möglich.
Beschreibung
Optimal
Das Besondere beim SH 122 - Variante B1 ist neben der sehr offenen Gestaltung des Erdgeschosses der Hauseingang an der Giebelseite. Die ½ gewendelte Treppe im Flur als auch der erhöhte Kniestock im Dachgeschoss ermöglichen mehr Fläche für Ihre Möblierung.
Total im Trend liegt derzeit die Variante D des SH 122. Die geradläufige Treppe bildet nicht nur Mittelpunkt des Grundrisses, sondern ist zugleich Blickfang im Wohn- und Essbereich. Sie führt nach oben in die Diele, von der aus das Schlafzimmer mit Ankleide, zwei weitere Zimmer sowie das Dusch- und Wannenbad abgehen. Der erhöhte Kniestock von 0,90 m ist ein Plus, welches Ihnen eine optimale Nutzung der Fläche unter der Dachschräge ermöglicht.
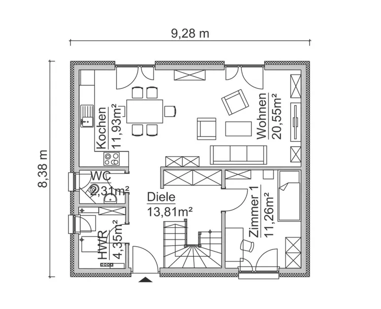
Die Variante E mit modernen Fensterformaten ist im Erdgeschoss mit einem Zimmer und einer halbgewendelten Treppe geplant. Der erhöhte Kniestock von 0,90 m ist ein Plus, welches Ihnen eine optimale Nutzung der Fläche unter der Dachschräge ermöglicht. Entdecken Sie die vielen Vorzüge des SH 122 - VAR. E einfach für sich selbst!
Grundrissbeispiele
Bei ScanHaus Marlow haben bereits viele Haustypen mehrere Grundrissvarianten. Sollte Ihnen keine Variante zusprechen, ist es selbstverständlich möglich den Grundriss nach Ihren individuellen Wünschen und Bedürfnissen in Abstimmung mit unseren Architekten anzupassen.
- 1,5-Geschosser
- 121,89 m² Wohn- u. Nutzfläche
- 109,92 m² Wohn- u. Nutzfläche nach WoFIV
- 4 Zimmer
- 1,5-Geschosser
- 122,44 m² Wohn- u. Nutzfläche
- 109,59 m² Wohn- u. Nutzfläche nach WoFIV
- 4 Zimmer
 
   
													 
													 
												 
	
											 
													 
													 
												 
	
											 
												 
	
											 
   
	 
   
	 
	
	 
	 
						 
						 
						 
   
	 
	 
	 
						 
						 
						 
						 
	 
	 
	 
	 
	 
	 
	 
	 
	