Mehrgenerationen-Fertighäuser

Mehrgenerationenhaus Fertighaus: SH 244 EW

nächstes Fertighaus
Fertighaus Mehrgenerationenhaus 1,5-Geschosser SH 244 EW
Fertighaus Mehrgenerationenhaus 1,5-Geschosser SH 244 EW
qm-we_115-sh244ew
Fertighaus Mehrgenerationenhaus SH 244 EW mit Einliegerwohnung
Fertighaus Mehrgenerationenhaus SH 244 EW
Fertighaus Mehrgenerationenhaus SH 244 EW Holzfassade
Fertighaus Mehrgenerationenhaus SH 244 EW Holzfassade
Fertighaus Mehrgenerationenhaus SH 244 EW mit Einliegerwohnung
Fertighaus Mehrgenerationenhaus SH 244 EW

Abgebildete Häuser und Grundrisse können Sonderbauteile (z.B. Gaube, Erker) und -ausstattungen (z.B. Rollläden, zusätzliche Fenster) enthalten, Farbabweichungen sind möglich.

Beschreibung

„Zwillingswohnen“ unter einem Dach

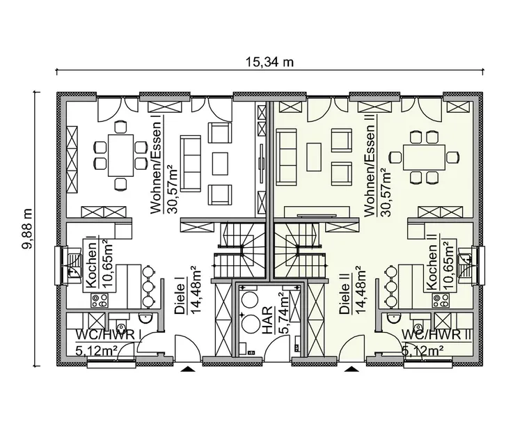
Mehrgenerationenwohnen - ein trendiges Wohnmodell für ein Miteinander von Generationen. Umso schöner, wenn beiden Parteien hierfür gleich viel Raum zur Verfügung steht – lediglich den Hausanschlussraum teilt man sich beim SH 244 EW. Der Parterre-Grundriss ist grundsätzlich offen: Rund um die halbgewendelte Treppe liegen der Wohn- und Essbereich, Küche, Diele und Hauswirtschaftraum mit vorgelagertem Gäste- WC. Im Dachgeschoss sind drei fast gleichgroße Zimmer – eins davon ein Schlafzimmer – sowie das Vollbad untergebracht.

Grundrissbeispiel

Bei ScanHaus Marlow haben bereits viele Haustypen mehrere Grundrissvarianten. Sollte Ihnen keine Variante zusprechen, ist es selbstverständlich möglich den Grundriss nach Ihren individuellen Wünschen und Bedürfnissen in Abstimmung mit unseren Architekten anzupassen.

Grundrissbeispiel SH 244 EW
  • Mehrgenerationenhaus
  • 246,16 m² Wohn- u. Nutzfläche
  • 215,56 m² Wohn- u. Nutzfläche nach WoFIV
  • 4 + 4 Zimmer
  • WE I mit 120,21 m² und WE II mit 120,21 m² Wohn- u. Nutzfläche
Erdgeschoss
generationenhaus-grundriss-sh244ew-eg-b37ce252
Dachgeschoss
generationenhaus-grundriss-sh244ew-dg-f4cc403c

Jetzt informieren: Aktuelle Themen aus unserem Hausbauratgeber

Berater vor Ort

Berater in Ihrer Nähe finden

Sie erreichen unsere fachkundigen Hausverkäufer deutschlandweit in über 50 Musterhäuser und Vertriebsbüros, welche gern Ihre ganz persönlichen Wünsche und Fragen beantworten.

Kostenfrei Fertighaus Katalog bestellen

Bestellen Sie kostenlos und unverbindlich unseren Hauskatalog für Ihr Traumhaus und erfahren Sie alles über ScanHaus Marlow.

Jetzt bestellen