Fertighäuser Küche

Mehrgenerationenhaus Fertighaus: SH 142 B EW

nächstes Fertighaus
Fertighaus Mehrgenerationenhaus Bungalow SH 142 B EW - Var. A1 + B
Fertighaus Mehrgenerationenhaus Bungalow SH 142 B EW - Var. A1 + B
qm-we_13-sh142bewvara1
qm-we_14-sh142bewvarb

Abgebildete Häuser und Grundrisse können Sonderbauteile (z.B. Gaube, Erker) und -ausstattungen (z.B. Rollläden, zusätzliche Fenster) enthalten, Farbabweichungen sind möglich.

Beschreibung

Alle auf einer Ebene - aber mit Privatsphäre

Das Mehrgenerationenhaus SH 142 B EW ist eine 34,36 m² große Einliegerwohnung bei der Variante A1 integriert, bei der Variante B ähnlich groß mit 34,12m². Die Hauptwohnung erstreckt sich über rund 106 m² und bietet Platz in 4 Zimmern. Dieses Mehrgenerationenhaus unterscheidet sich zwischen den Varianten A1 und B lediglich in der Eingangsgestaltung.

Grundrissbeispiele

Bei ScanHaus Marlow haben bereits viele Haustypen mehrere Grundrissvarianten. Sollte Ihnen keine Variante zusprechen, ist es selbstverständlich möglich den Grundriss nach Ihren individuellen Wünschen und Bedürfnissen in Abstimmung mit unseren Architekten anzupassen.

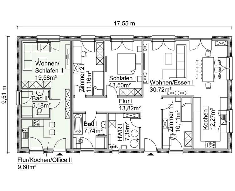
GRUNDRISSBEISPIEL SH 142 B EW - VAR. A1
  • Mehrgenerationenhaus
  • 141,08 m² Wohn- u. Nutzfläche
  • 141,08 m² Wohn- u. Nutzfläche nach WoFIV
  • 4 + 1 Zimmer
  • WE I mit 106,72 m² und WE II mit 34,36 m² Wohn- u. Nutzfläche
Erdgeschoss
generationenhaus-grundriss-sh142bew-a1-b91a41ce
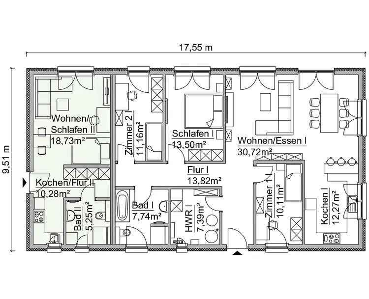
GRUNDRISSBEISPIEL SH 142 B EW - VAR. B
  • Mehrgenerationenhaus
  • 140,98 m² Wohn- u. Nutzfläche
  • 140,98 m² Wohn- u. Nutzfläche nach WoFIV
  • 4 + 1 Zimmer
  • WE I mit 106,72 m² und WE II mit 34,26 m² Wohn- u. Nutzfläche
Erdgeschoss
generationenhaus-grundriss-sh142bew-b-9684eb9a

Jetzt informieren: Aktuelle Themen aus unserem Hausbauratgeber

Berater vor Ort

Berater in Ihrer Nähe finden

Sie erreichen unsere fachkundigen Hausverkäufer deutschlandweit in über 50 Musterhäuser und Vertriebsbüros, welche gern Ihre ganz persönlichen Wünsche und Fragen beantworten.

Kostenfrei Fertighaus Katalog bestellen

Bestellen Sie kostenlos und unverbindlich unseren Hauskatalog für Ihr Traumhaus und erfahren Sie alles über ScanHaus Marlow.

Jetzt bestellen