Bungalow Fertighäuser

Bungalow Fertighaus: SH 95 B

nächstes Fertighaus
Fertighaus Bungalow SH 95 B - Variante B mit optionaler, heller Holzfassade
Fertighaus Bungalow SH 95 B - Var. B mit Holzfassade
Terrassenansicht des Bungalows SH 95 B mit optionalem Satteldach
Fertighaus Bungalow SH 95 B mit Satteldach (optional)
Referenzhaus SH 95 B
Referenzhaus SH 95 B
Fertighaus Bungalow SH 95 B
Fertighaus Bungalow SH 95 B
Fertighaus Bungalow SH 95 B mit Erker
Fertighaus Bungalow SH 95 B mit Erker
Fertighaus Bungalow SH 95 B
Fertighaus Bungalow SH 95 B

Abgebildete Häuser und Grundrisse können Sonderbauteile (z.B. Gaube, Erker) und -ausstattungen (z.B. Rollläden, zusätzliche Fenster) enthalten, Farbabweichungen sind möglich.

Beschreibung

In einem Wort: passt

Das SH 95 B gibt es in zwei Grundrissvarianten bei gleicher Kubatur. Allen gemein sind der offene Wohn-, Koch- und Essbereich jedoch unterschiedlich geplant. Daraus ergibt sich bei Variante B ein Zimmer mehr als bei Variante D.

Des Weiteren gehören zum jeweiligen Wohnkonzept mit vielen bodentiefen Fenstern ein Schlafzimmer, ein bzw. eben zwei weitere Zimmer, ein Vollbad, ein Gäste-WC und ein Hauswirtschaftsraum. Unterschiedliche Nischenlösungen für Garderobe oder Stauraum unterscheiden ebenfalls noch einmal die Raumplanung in den Grundrissbeispielen. Wenn Sie Ihr Scanhaus mit einem Satteldach statt mit einem Walmdach gestalten und eine PV-Anlage installieren, sind sie nochmal besser für die Zukunft aufgestellt.

Grundrissbeispiele

Bei ScanHaus Marlow haben bereits viele Haustypen mehrere Grundrissvarianten. Sollte Ihnen keine Variante zusprechen, ist es selbstverständlich möglich den Grundriss nach Ihren individuellen Wünschen und Bedürfnissen in Abstimmung mit unseren Architekten anzupassen.

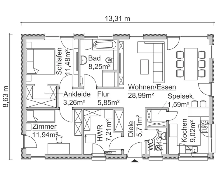
Grundrissbeispiel SH 95 B - VAR. B
  • Bungalow
  • 95,54 m² Wohn- u. Nutzfläche
  • 95,54 m² Wohn- u. Nutzfläche nach WoFIV
  • 4 Zimmer
Erdgeschoss
bungalow-grundriss-sh095b-b-61f87833
Grundrissbeispiel SH 95 B - VAR. D
  • Bungalow
  • 95,71 m² Wohn- u. Nutzfläche
  • 95,71 m² Wohn- u. Nutzfläche nach WoFIV
  • 3 Zimmer
Erdgeschoss
bungalow-grundriss-sh-95-b-var-d-1600x1300-ee155603

Jetzt informieren: Aktuelle Themen aus unserem Hausbauratgeber

Berater vor Ort

Berater in Ihrer Nähe finden

Sie erreichen unsere fachkundigen Hausverkäufer deutschlandweit in über 50 Musterhäuser und Vertriebsbüros, welche gern Ihre ganz persönlichen Wünsche und Fragen beantworten.

Kostenfrei Fertighaus Katalog bestellen

Bestellen Sie kostenlos und unverbindlich unseren Hauskatalog für Ihr Traumhaus und erfahren Sie alles über ScanHaus Marlow.

Jetzt bestellen