Bungalow Fertighäuser

Bungalow Fertighaus: SH 150 B

nächstes Fertighaus
Fertighaus Bungalow SH 150 B
Fertighaus Bungalow SH 150 B
Fertighaus Bungalow SH 150 B
Fertighaus Bungalow SH 150 B
Fertighaus Bungalow SH 150 B
Fertighaus Bungalow SH 150 B

Abgebildete Häuser und Grundrisse können Sonderbauteile (z.B. Gaube, Erker) und -ausstattungen (z.B. Rollläden, zusätzliche Fenster) enthalten, Farbabweichungen sind möglich.

Beschreibung

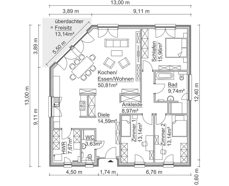
Das SH 150 B hat einen quadratischen Grundriss mit geplanter Terrasse unter einem Pyramidendach (Bezeichnung für jeweils zwei gegeneinander geneigte Dachflächen, die in einer Spitze zusammenlaufen). Über die diagonal gesetzte Fensterfront erhält man Zugang zur dreieckig überdachten Freifläche. Die Aufteilung und Anordnung der vier Zimmer gestaltet sich hier sehr individuell. Erwähnenswert ist zudem der zurückgesetzte Hauseingangsbereich mit vergrößertem Dachüberstand.

Grundrissbeispiel

Bei ScanHaus Marlow haben bereits viele Haustypen mehrere Grundrissvarianten. Sollte Ihnen keine Variante zusprechen, ist es selbstverständlich möglich den Grundriss nach Ihren individuellen Wünschen und Bedürfnissen in Abstimmung mit unseren Architekten anzupassen.

Grundrissbeispiel SH 150 B
  • Bungalow
  • 150,78 m² Wohn- u. Nutzfläche
  • 140,93 m² Wohn- u. Nutzfläche nach WoFIV
  • 4 Zimmer
Erdgeschoss
bungalow-grundriss-sh150b-26aa5471

Jetzt informieren: Aktuelle Themen aus unserem Hausbauratgeber

Berater vor Ort

Berater in Ihrer Nähe finden

Sie erreichen unsere fachkundigen Hausverkäufer deutschlandweit in über 50 Musterhäuser und Vertriebsbüros, welche gern Ihre ganz persönlichen Wünsche und Fragen beantworten.

Kostenfrei Fertighaus Katalog bestellen

Bestellen Sie kostenlos und unverbindlich unseren Hauskatalog für Ihr Traumhaus und erfahren Sie alles über ScanHaus Marlow.

Jetzt bestellen