header-hausdetail-41.jpg

Bungalow Fertighaus: SH 140 B

nächstes Fertighaus
Bungalow SH 140 B
Bungalow SH 140 B
Fertighaus Bungalow SH 140 B
Fertighaus Bungalow SH 140 B

Abgebildete Häuser und Grundrisse können Sonderbauteile (z.B. Gaube, Erker) und -ausstattungen (z.B. Rollläden, zusätzliche Fenster) enthalten, Farbabweichungen sind möglich.

Beschreibung

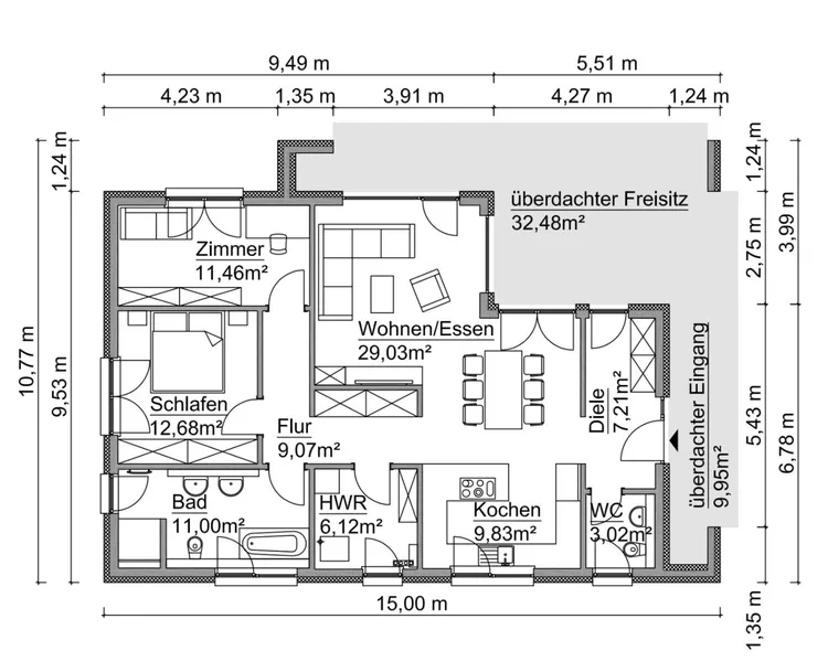
Entdecken Sie den perfekten Ort für Ihre kleine Familie im SH 140 B Bungalow von ScanHaus Marlow! Dieses wunderschöne Zuhause verbindet geschickt Innen- und Außenraum und schafft eine harmonische Atmosphäre für kleine Familien oder Paare, die das Leben im Freien lieben. 

Der Bungalow besticht durch seine großzügige 30m² große, teilweise in den Bungalow integrierte überdachte Terrasse. Diese fungiert nicht nur als eine Erweiterung des Wohnraums, sondern auch als ein zusätzliches Zimmer im Grünen. Ideal, um die frische Luft zu genießen und draußen zu entspannen. 

Beim Betreten des Bungalows durch den seitlichen Hauseingang werden Sie von einer einladenden Diele mit Garderobenbereich empfangen. Links davon befindet sich ein Gäste-WC. Der Wohnbereich ist hell und großzügig gestaltet, dank bodentiefer Fensterflächen, die den Raum mit gesundem Tageslicht durchfluten. Die offene Küche auf der linken Seite und der geräumige Ess- und Wohnbereich auf der rechten Seite bieten genügend Platz für gemütliche Stunden mit Ihrer Familie. 

Durch den Wohnbereich gelangen Sie zum privaten Teil des Hauses, der ein Schlafzimmer, ein weiteres Zimmer, ein Badezimmer mit der Möglichkeit für einen Doppelwaschtisch, eine Wanne und eine Dusche umfasst. Ein Hauswirtschaftsraum liegt praktisch zwischen Küche und Badezimmer. Hier finden Sie alles, was Sie für Ihr tägliches Leben benötigen, in einem gemütlichen und durchdachten Raumkonzept.  

Zurück zur Terrasse: Zusätzlich sind zwei Nischen auf der Terrasse geschickt vorbereitet, um versteckten Stauraum zu integrieren. Die Besonderheit dieses Bungalow-Entwurfs liegt in der cleveren Überdachung der Terrasse. Im Sommer schützt sie vor der intensiven Sonne, während im Winter die tiefstehende Sonne den Wohnraum mit angenehmer Wärme durchflutet. Eine perfekte Balance zwischen Innen- und Außenleben, die Ihnen zu jeder Jahreszeit ein behagliches Zuhause bietet. 

 

Grundrissbeispiel

Bei ScanHaus Marlow haben bereits viele Haustypen mehrere Grundrissvarianten. Sollte Ihnen keine Variante zusprechen, ist es selbstverständlich möglich den Grundriss nach Ihren individuellen Wünschen und Bedürfnissen in Abstimmung mit unseren Architekten anzupassen.

Grundrissbeispiel SH 140 B
  • Bungalow
  • 141,82 m² Wohn- u. Nutzfläche
  • 107,51 m² Wohn- u. Nutzfläche nach WoFIV
  • 3 Zimmer
Erdgeschoss
bungalow-grundriss-sh-140-b-b361c3de

Jetzt informieren: Aktuelle Themen aus unserem Hausbauratgeber

Berater vor Ort

Berater in Ihrer Nähe finden

Sie erreichen unsere fachkundigen Hausverkäufer deutschlandweit in über 50 Musterhäuser und Vertriebsbüros, welche gern Ihre ganz persönlichen Wünsche und Fragen beantworten.

Kostenfrei Fertighaus Katalog bestellen

Bestellen Sie kostenlos und unverbindlich unseren Hauskatalog für Ihr Traumhaus und erfahren Sie alles über ScanHaus Marlow.

Jetzt bestellen