Bungalow Fertighäuser

Bungalow Fertighaus: SH 128 B

nächstes Fertighaus
Fertighaus Bungalow SH 128 B
Fertighaus Bungalow SH 128 B
Fertighaus Bungalow SH 128 B (Satteldach und Panoramaverglasung optional)
Bungalow SH 128 B (Satteldach und Panoramaverglasung optional)
Fertighaus Bungalow SH 128 B
Fertighaus Bungalow SH 128 B
Fertighaus Bungalow SH 128 B | Betondachstein weinrot
Fertighaus Bungalow SH 128 B
Fertighaus Bungalow SH 128 B
Fertighaus Bungalow SH 128 B

Abgebildete Häuser und Grundrisse können Sonderbauteile (z.B. Gaube, Erker) und -ausstattungen (z.B. Rollläden, zusätzliche Fenster) enthalten, Farbabweichungen sind möglich.

Beschreibung

Familienfreundlich Wohnen und Leben

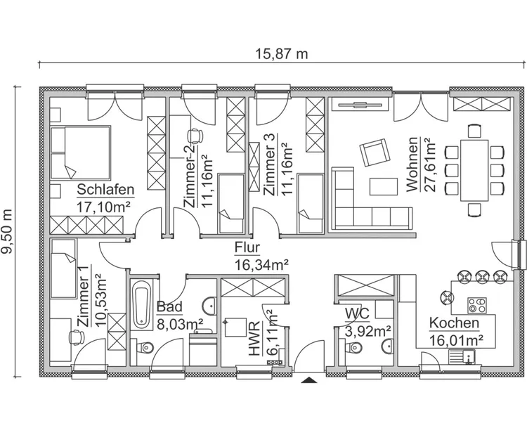
Mit seinen fünf Zimmern auf nahezu 128 m² eignet sich das SH 128 B besonders für Familien mit mehr als einem Kind. In diesem Bungalow gelangen Sie über den Hauseingang in den offen gehaltenen Flur, der alle Räume miteinander verbindet. Die Funktionen Wohnen, Essen und Kochen wurden in einem Allraum mit ca. 44 m² Wohn- und Nutzfläche geplant, unterschiedliche Fensterlösungen zur Terrasse sind hier möglich. Drei weitere Zimmer, nahezu gleich groß, können je nach Lebenssituation durch Kinder, Gäste und/ oder als Arbeitszimmer genutzt werden. Ein Schlafzimmer, ein Vollbad sowie das beliebte Gästebad vervollständigen diese Grundrisslösung. Und … wie in allen Scanhäusern ist auch bei diesem Haus die Bodenplatte selbstverständlich im Preis bereits inbegriffen.

Wenn Sie ein Haus bauen, ergeben sich viele Fragen, die Sie gern mit unseren Beratern vor Ort besprechen können. In einem ersten Gespräch erfahren Sie z. B., welche Fensterlösungen möglich sind, können klären, ob Sie ein Satteldach oder ein Walmdach bevorzugen und sich über die Installation einer PV-Anlage informieren.

 

Grundrissbeispiel

Bei ScanHaus Marlow haben bereits viele Haustypen mehrere Grundrissvarianten. Sollte Ihnen keine Variante zusprechen, ist es selbstverständlich möglich den Grundriss nach Ihren individuellen Wünschen und Bedürfnissen in Abstimmung mit unseren Architekten anzupassen.

Grundrissbeispiel SH 128 B
  • Bungalow
  • 127,97 m² Wohn- u. Nutzfläche
  • 127,97 m² Wohn- u. Nutzfläche nach WoFIV
  • 5 Zimmer
Erdgeschoss
bungalow-grundriss-sh128b-f94343a1

Jetzt informieren: Aktuelle Themen aus unserem Hausbauratgeber

Berater vor Ort

Berater in Ihrer Nähe finden

Sie erreichen unsere fachkundigen Hausverkäufer deutschlandweit in über 50 Musterhäuser und Vertriebsbüros, welche gern Ihre ganz persönlichen Wünsche und Fragen beantworten.

Kostenfrei Fertighaus Katalog bestellen

Bestellen Sie kostenlos und unverbindlich unseren Hauskatalog für Ihr Traumhaus und erfahren Sie alles über ScanHaus Marlow.

Jetzt bestellen