Bungalow Fertighäuser

Bungalow Fertighaus: SH 115 WB

nächstes Fertighaus
Fertighaus Bungalow SH 115 WB - Var. B
Fertighaus Bungalow SH 115 WB - Var. B
Fertighaus Bungalow SH 115 WB mit Holzfassade
Fertighaus Bungalow SH 115 WB mit Holzfassade
SH 115 WB | Essbereich
SH 115 WB | Essbereich
SH 115 WB | Wohnzimmer
SH 115 WB | Wohnzimmer
Fertighaus Winkelbungalow  SH 115 WB - VAR. C
Fertighaus Winkelbungalow SH 115 WB - VAR. C
Fertighaus Winkelbungalow SH 115 WB - VAR. B Verblendfassade
Fertighaus Winkelbungalow SH 115 WB - VAR. B
Fertighaus Winkelbungalow SH 115 WB - VAR. C
Fertighaus Winkelbungalow SH 115 WB - VAR. C
Fertighaus Winkelbungalow SH 115 WB - VAR. C Holzfassade
Fertighaus Winkelbungalow SH 115 WB - VAR. C

Abgebildete Häuser und Grundrisse können Sonderbauteile (z.B. Gaube, Erker) und -ausstattungen (z.B. Rollläden, zusätzliche Fenster) enthalten, Farbabweichungen sind möglich.

Beschreibung

Ein Winkelbungalow zum Verlieben – so lässt sich das SH 115 WB wohl am besten beschreiben. Dabei kann bei gleicher Zimmeranzahl und nahezu identischer Wohn-und Nutzfläche zwischen zwei verschiedenen Grundrissvarianten gewählt werden.

Bei beiden befindet sich der Wohn- und Essbereich im Hauswinkel, die Küche wurde jedoch unterschiedlich positioniert. Dadurch ergeben sich unterschiedliche Raumanordnungen in den beiden Grundrissen und ermöglichen bei Variante C zusätzlich ein Gäste-WC. Schauen Sie selbst, welche Lösung ihren Vorstellungen entspricht.

Grundrissbeispiele

Bei ScanHaus Marlow haben bereits viele Haustypen mehrere Grundrissvarianten. Sollte Ihnen keine Variante zusprechen, ist es selbstverständlich möglich den Grundriss nach Ihren individuellen Wünschen und Bedürfnissen in Abstimmung mit unseren Architekten anzupassen.

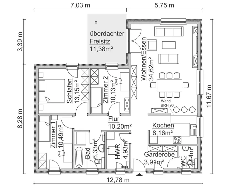
Grundrissbeispiel SH 115 WB - VAR. B
  • Bungalow
  • 115,51 m² Wohn- u. Nutzfläche
  • 109,29 m² Wohn- u. Nutzfläche nach WoFIV
  • 4 Zimmer
Erdgeschoss
bungalow-grundriss-sh115wb-b-56acdce8
Grundrissbeispiel SH 115 WB - VAR. C
  • Bungalow
  • 115,73 m² Wohn- u. Nutzfläche
  • 107,20 m² Wohn- u. Nutzfläche nach WoFIV
  • 4 Zimmer
Erdgeschoss
bungalow-grundriss-sh115wb-c-2786ced7

Jetzt informieren: Aktuelle Themen aus unserem Hausbauratgeber

Berater vor Ort

Berater in Ihrer Nähe finden

Sie erreichen unsere fachkundigen Hausverkäufer deutschlandweit in über 50 Musterhäuser und Vertriebsbüros, welche gern Ihre ganz persönlichen Wünsche und Fragen beantworten.

Kostenfrei Fertighaus Katalog bestellen

Bestellen Sie kostenlos und unverbindlich unseren Hauskatalog für Ihr Traumhaus und erfahren Sie alles über ScanHaus Marlow.

Jetzt bestellen