Aktionshaus Fertighaus: AH 1
nächstes FertighausAbgebildete Häuser und Grundrisse können Sonderbauteile (z.B. Gaube, Erker) und -ausstattungen (z.B. Rollläden, zusätzliche Fenster) enthalten, Farbabweichungen sind möglich.
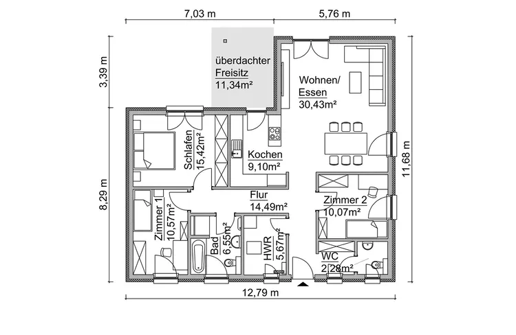
Beschreibung
Dieser Winkelbungalow mit 4 Zimmern bietet Ihnen und Ihrer Familie genügend Platz für ein harmonisches Zusammenleben auf rund 116 m². Der offene Wohn-/Essbereich mit integrierter Küche ist der perfekte Ort, um gemeinsam zu kochen, zu essen und zu entspannen.
Durch die zum Teil bodentiefen Verglasungen wird der Raum mit natürlichem Licht geflutet und schafft eine warme, einladende Atmosphäre. Von hier aus haben Sie direkten Zugang zur Terrasse mit einem überdachten Freisitz, wo Sie den Tag mit einem gemütlichen Frühstück beginnen oder den Abend bei einem Glas Wein ausklingen lassen können. Hier können Sie den Blick in die Natur genießen und dem Alltag entfliehen.
Das Schlafzimmer liegt ebenfalls zur Terrassenseite, während sich die zwei anderen Zimmer im vorderen Bereich des Hauses befinden. Die Sanitärbereiche sind mit einem Vollbad und einem Gäste-WC ausgestattet, um sicherzustellen, dass jeder in Ihrem Haushalt den Komfort und die Privatsphäre hat, die er benötigt.
Durch die aktuelle Aktion erhalten Sie das Haus zu einem unschlagbaren Preis ab 184.900€*! Zögern Sie also nicht länger und lassen Sie sich diese Chance auf Ihr Traumhaus nicht entgehen.
* abhängig von Ihrem Baugebiet
Grundrissbeispiel
Bei ScanHaus Marlow haben bereits viele Haustypen mehrere Grundrissvarianten. Sollte Ihnen keine Variante zusprechen, ist es selbstverständlich möglich den Grundriss nach Ihren individuellen Wünschen und Bedürfnissen in Abstimmung mit unseren Architekten anzupassen.
 
   
													 
													 
												 
	
											 
													 
													 
												 
	
											 
												 
	
											 
   
	 
   
						 
	 
	 
	 
	