1,5-Geschosser Fertighaus

1,5-Geschosser Fertighaus: SH 165 Drempel

nächstes Fertighaus
Fertighaus 1,5-Geschosser SH 165 Drempel
Fertighaus 1,5-Geschosser SH 165 Drempel
kniestock-1500x940_1_sh-165-d.jpg
Fertighaus SH 165 Drempel
Fertighaus SH 165 Drempel
Fertighaus SH 165 Drempel
Fertighaus SH 165 Drempel
Fertighaus SH 165 Drempel
Fertighaus SH 165 Drempel
SH 165 D
Aussenansicht starten

Abgebildete Häuser und Grundrisse können Sonderbauteile (z.B. Gaube, Erker) und -ausstattungen (z.B. Rollläden, zusätzliche Fenster) enthalten, Farbabweichungen sind möglich.

Beschreibung

Mehr Stauraum durch intelligente Bauweise

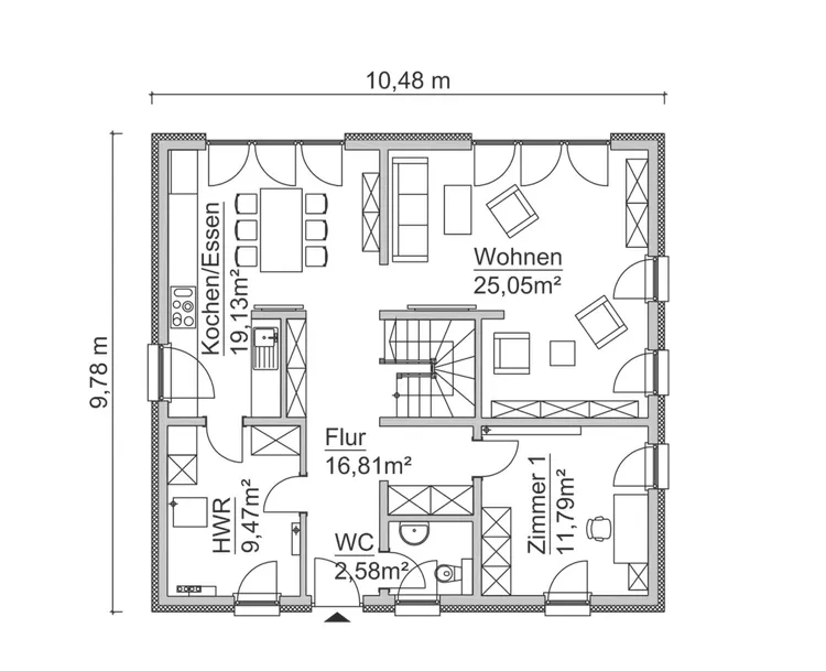
Das Raumkonzept des SH 165 Drempel zeigt eine interessante Anordnung des offenen Koch-, Ess- und Wohnbereiches mit Leseecke am Kamin, viele Nischenlösungen, praktischer Zugang zum Hauswirtschaftsraum von der Küche aus und ein weiteres Zimmer im Erdgeschoss. Über eine ½ gewendelte Treppe gelangt man zu zwei Zimmern, beide mit Zutritt zum gemeinsamen Bad. Einen weiteren in sich geschlossenen Bereich bilden das Schlafzimmer, die offene Ankleide und das großzügig geschnittene Bad – alle nacheinander begehbar.

Grundrissbeispiel

Bei ScanHaus Marlow haben bereits viele Haustypen mehrere Grundrissvarianten. Sollte Ihnen keine Variante zusprechen, ist es selbstverständlich möglich den Grundriss nach Ihren individuellen Wünschen und Bedürfnissen in Abstimmung mit unseren Architekten anzupassen.

Grundrissbeispiel SH 165 Drempel
  • 1,5-Geschosser
  • 165,75 m² Wohn- u. Nutzfläche
  • 155,66 m² Wohn- u. Nutzfläche nach WoFIV
  • 5 Zimmer
Erdgeschoss
geschosser-grundriss-sh165d-eg-60627d2e
Dachgeschoss
geschosser-grundriss-sh165d-og-f816111b

Jetzt informieren: Aktuelle Themen aus unserem Hausbauratgeber

Berater vor Ort

Berater in Ihrer Nähe finden

Sie erreichen unsere fachkundigen Hausverkäufer deutschlandweit in über 50 Musterhäuser und Vertriebsbüros, welche gern Ihre ganz persönlichen Wünsche und Fragen beantworten.

Kostenfrei Fertighaus Katalog bestellen

Bestellen Sie kostenlos und unverbindlich unseren Hauskatalog für Ihr Traumhaus und erfahren Sie alles über ScanHaus Marlow.

Jetzt bestellen