1,5-Geschosser Fertighaus: SH 158 Drempel
nächstes FertighausAbgebildete Häuser und Grundrisse können Sonderbauteile (z.B. Gaube, Erker) und -ausstattungen (z.B. Rollläden, zusätzliche Fenster) enthalten, Farbabweichungen sind möglich.
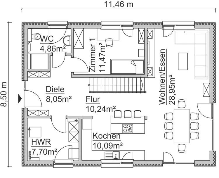
Beschreibung
Modern und funktional mit 2m Kniestock
Erleben Sie ein Wohngefühl der besonderen Art mit dem Drempelhaus SH 158 D! Dieses Fertighaus besticht durch seine geradlinige Architektur und die großzügigen Panoramaverglasungen, die für ein helles und offenes Wohngefühl sorgen. Der seitliche Hauseingang mit großer Diele und geradliniger Treppe führt Sie direkt in den Wohnbereich, der mit einer modernen Wohnlandschaft, einem Essbereich sowie einer offenen Küche mit Insellösung geplant wurde. Großzügige Panoramaverglasungen sorgen für eine lichtdurchflutete und offene Atmosphäre. Des Weiteren befindet sich im Erdgeschoss ein Zimmer mit direktem Zugang zum Gäste-WC mit Duschmöglichkeit, damit kann dieser separate Bereich perfekt Gästen oder einem Kind zur Verfügung gestellt werden. Im Dachgeschoss erwartet Sie eine Kniestockhöhe von 2 m, die viel Gestaltungsspielraum für die Einrichtung der drei Zimmer und des Schlafzimmers mit separatem Ankleidebereich bietet. Das Vollbad mit Dusche und Badewanne ist der perfekte Ort, um sich zu entspannen und den Alltag hinter sich zu lassen. Die Oberlicht- und bodentiefen Fenster auf dieser Ebene sind nicht nur funktional sondern Teil des modernen Wohnkonzeptes dieses 1,5-Geschossers.
Grundrissbeispiel
Bei ScanHaus Marlow haben bereits viele Haustypen mehrere Grundrissvarianten. Sollte Ihnen keine Variante zusprechen, ist es selbstverständlich möglich den Grundriss nach Ihren individuellen Wünschen und Bedürfnissen in Abstimmung mit unseren Architekten anzupassen.
 
   
													 
													 
												 
	
											 
													 
													 
												 
	
											 
												 
	
											 
   
	 
   
	 
	
	 
						 
						 
	 
	 
	 
	 
	