1,5-Geschosser Fertighaus: SH 142 - Var. D
nächstes FertighausAbgebildete Häuser und Grundrisse können Sonderbauteile (z.B. Gaube, Erker) und -ausstattungen (z.B. Rollläden, zusätzliche Fenster) enthalten, Farbabweichungen sind möglich.
Beschreibung
Durch den seitlichen Eingang auf der Giebelseite und einer geraden Treppe ergeben sich bei Variante D völlig neue Anordnungen in beiden Geschossen. Zudem ermöglicht der erhöhte Kniestock von 0,90 m im Dachgeschoss mehr Optionen in der Möblierung - das Schlafzimmer wurde mit einer Ankleide geplant und das Bad hat hier eine größere Fläche.
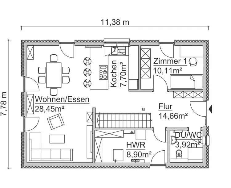
Grundrissbeispiel
Bei ScanHaus Marlow haben bereits viele Haustypen mehrere Grundrissvarianten. Sollte Ihnen keine Variante zusprechen, ist es selbstverständlich möglich den Grundriss nach Ihren individuellen Wünschen und Bedürfnissen in Abstimmung mit unseren Architekten anzupassen.
 
   
													 
													 
												 
	
											 
													 
													 
												 
	
											 
												 
	
											 
   
	 
   
	 
	
	 
	 
						 
						 
						 
   
						 
	 
	 
	 
	 
	