1,5-Geschosser Fertighaus

1,5-Geschosser Fertighaus: SH 142 Drempel FS

nächstes Fertighaus
1,5-Geschosser SH 142 Drempel Frontspieß
1,5-Geschosser SH 142 Drempel FS
kniestock-1500x940_1_sh-142-d-fs.jpg
Fertighaus 1,5 Geschosser SH 142 Drempel Frontspiess
Fertighaus 1,5 Geschosser SH 142 Drempel Frontspiess
Fertighaus 1,5 Geschosser SH 142 Drempel Frontspiess
Fertighaus 1,5 Geschosser SH 142 Drempel Frontspiess
Fertighaus 1,5 Geschosser SH 142 Drempel Frontspiess
Fertighaus 1,5 Geschosser SH 142 Drempel Frontspiess
Fertighaus 1,5 Geschosser SH 142 Drempel Frontspiess
Fertighaus 1,5 Geschosser SH 142 Drempel Frontspiess

Abgebildete Häuser und Grundrisse können Sonderbauteile (z.B. Gaube, Erker) und -ausstattungen (z.B. Rollläden, zusätzliche Fenster) enthalten, Farbabweichungen sind möglich.

Beschreibung

Mehr Wohnfläche und Licht ermöglicht Ihnen das SH 142 D FS dank des attraktiven Frontspießes und raumhoher Verglasung. Ein großzügiger Wohn-Essbereich mit Küche, der sich zum Garten hin öffnet, sowie klare Raumschnitte schaffen ein angenehmes Raumgefühl. Unterm Dach erwarten Sie drei weitere Zimmer und Bad – alle von der Diele aus begehbar.

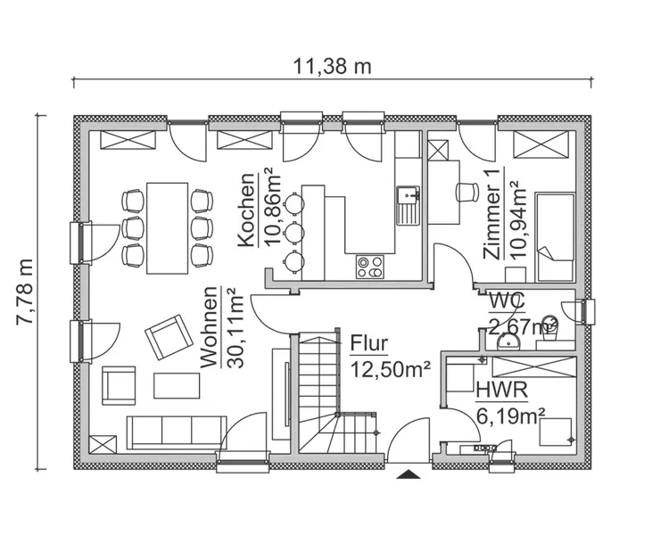
Grundrissbeispiel

Bei ScanHaus Marlow haben bereits viele Haustypen mehrere Grundrissvarianten. Sollte Ihnen keine Variante zusprechen, ist es selbstverständlich möglich den Grundriss nach Ihren individuellen Wünschen und Bedürfnissen in Abstimmung mit unseren Architekten anzupassen.

Grundrissbeispiel SH 142 Drempel FS
  • 1,5-Geschosser
  • 141,72 m² Wohn- u. Nutzfläche
  • 133,12 m² Wohn- u. Nutzfläche nach WoFIV
  • 5 Zimmer
Erdgeschoss
geschosser-grundriss-sh142dfs-eg-3e8bb6ae
Dachgeschoss
geschosser-grundriss-sh142dfs-og-4da18ff4

Jetzt informieren: Aktuelle Themen aus unserem Hausbauratgeber

Berater vor Ort

Berater in Ihrer Nähe finden

Sie erreichen unsere fachkundigen Hausverkäufer deutschlandweit in über 50 Musterhäuser und Vertriebsbüros, welche gern Ihre ganz persönlichen Wünsche und Fragen beantworten.

Kostenfrei Fertighaus Katalog bestellen

Bestellen Sie kostenlos und unverbindlich unseren Hauskatalog für Ihr Traumhaus und erfahren Sie alles über ScanHaus Marlow.

Jetzt bestellen