1,5-Geschosser Fertighaus

1,5-Geschosser Fertighaus: SH 116 Drempel

nächstes Fertighaus
Einfamilienhaus 1,5-Geschosser SH 116 Drempel
Einfamilienhaus 1,5-Geschosser SH 116 Drempel
kniestock-1500x940_1_sh-116-d.jpg

Abgebildete Häuser und Grundrisse können Sonderbauteile (z.B. Gaube, Erker) und -ausstattungen (z.B. Rollläden, zusätzliche Fenster) enthalten, Farbabweichungen sind möglich.

Beschreibung

Mehr Platz in der zweiten Ebene

Das SH 116 D ist ein Raumwunder für schmale Grundstücke – modern, kompakt und durchdacht geplant. Der seitliche Eingang führt direkt in den hellen, offenen Wohn-, Ess- und Kochbereich mit bodentiefen Panoramafenstern zur Terrasse. Platz gibt es im Hauswirtschaftsraum nicht nur für Technik, auch im Flur sind Nischenlösungen für Garderobe und Absteller vorgesehen. Ein Gäste-WC vervollständigt die Planung im Erdgeschoss. Über eine geschlossene Systemtreppe mit Verglasung im Treppenhaus gelangt man ins Dachschoss. Hier sorgt ein 2 m hoher Kniestock für spürbar mehr Stellfläche für die Möblierung in den zwei Zimmern als auch Schlafzimmer mit integrierter Ankleide zu. Letzteres besitzt eine großflächige Fensterfront für einen tollen Blick nicht nur vom Bett aus. Im Vollbad finden alle Sanitärobjekte Platz und auch im Flur kann noch ein Bereich fürs Homeoffice oder eine Ecke für einen weiteren Absteller genutzt werden. Das Haus bietet sich mit seinen Außenmaßen von 12 x 6 Metern für besonders schmal geschnittene Grundstücke an. Ist dies für Sie ein Kriterium, dann stellt Ihnen unser Verkaufsberater gern weitere Haustypen aus diesem Bereich vor.

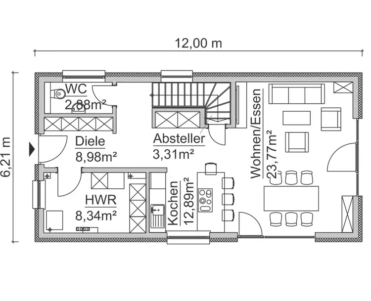
Grundrissbeispiel

Bei ScanHaus Marlow haben bereits viele Haustypen mehrere Grundrissvarianten. Sollte Ihnen keine Variante zusprechen, ist es selbstverständlich möglich den Grundriss nach Ihren individuellen Wünschen und Bedürfnissen in Abstimmung mit unseren Architekten anzupassen.

GRUNDRISSBEISPIEL SH 116 D
  • 1,5-Geschosser
  • 116,25 m² Wohn- u. Nutzfläche
  • 113,11 m² Wohn- u. Nutzfläche nach WoFIV
  • 4 Zimmer
Erdgeschoss
geschosser-grundriss-sh116d-eg-928c6bad
Dachgeschoss
geschosser-grundriss-sh116d-og-defa4661

Jetzt informieren: Aktuelle Themen aus unserem Hausbauratgeber

Berater vor Ort

Berater in Ihrer Nähe finden

Sie erreichen unsere fachkundigen Hausverkäufer deutschlandweit in über 50 Musterhäuser und Vertriebsbüros, welche gern Ihre ganz persönlichen Wünsche und Fragen beantworten.

Kostenfrei Fertighaus Katalog bestellen

Bestellen Sie kostenlos und unverbindlich unseren Hauskatalog für Ihr Traumhaus und erfahren Sie alles über ScanHaus Marlow.

Jetzt bestellen