Fertighäuser Wohnbeispiel

Stadtvilla Fertighaus: SH 172 S

nächstes Fertighaus
Fertighaus Stadtvilla SH 172 S mit Panoramaverglasung (inklusive)
Fertighaus Stadtvilla SH 172 S mit Panoramaverglasung (inklusive)
Referenzhaus Stadtvilla SH 172 S | Musterhaus Bornheim
Referenzhaus Stadtvilla SH 172 S | Musterhaus Bornheim

Abgebildete Häuser und Grundrisse können Sonderbauteile (z.B. Gaube, Erker) und -ausstattungen (z.B. Rollläden, zusätzliche Fenster) enthalten, Farbabweichungen sind möglich.

Beschreibung

Moderne Stadtvilla: Luxus und Komfort im urbanen Wohntraum

Willkommen in unserer Stadtvilla mit 172 m² Wohnfläche auf zwei Vollgeschossen unter einem Satteldach. Große bodentiefe Fenster, zum Teil mit Panoramaverglasung durchfluten das Haus mit viel Licht und schaffen eine freundliche und helle Atmosphäre. Der Wohn- und Essbereich ist großzügig gestaltet und bietet genügend Platz für eine Wohnlandschaft und einen Esstisch. Die offene Küche bietet die Möglichkeit für eine Kochinsel und in unmittelbarer Nähe befindet sich eine Speisekammer, welche Ihre Vorräte blicksicher verstaut. Ein weiteres Zimmer mit 14 m² und ein Gäste-WC mit Duschlösung befinden sich ebenfalls im Erdgeschoss.

Im Hauswirtschaftsraum ist die gesamte Gebäudetechnik untergebracht. Eine halbgewendelte Treppe führt ins Obergeschoss, wo Sie zwei weitere Zimmer mit modernen Fensterelementen vorfinden. Das Schlafzimmer bietet Raum für ein bequemes Boxspringbett und einen Frisier- oder Schreibtisch. Ein separater Ankleideraum mit genügend Platz für Ihre Outfits rundet das Raumkonzept ab. Das Vollbad bietet die Möglichkeit für einen Doppelwaschtisch und eine begehbare Dusche. Unsere Stadtvilla ist perfekt für Familien oder Paare, die ein modernes und funktionales Zuhause suchen.

Diese Stadtvilla SH 172 S entsteht derzeit als Musterhaus in Bornheim.

Grundrissbeispiel

Bei ScanHaus Marlow haben bereits viele Haustypen mehrere Grundrissvarianten. Sollte Ihnen keine Variante zusprechen, ist es selbstverständlich möglich den Grundriss nach Ihren individuellen Wünschen und Bedürfnissen in Abstimmung mit unseren Architekten anzupassen.

Grundrissbeispiel SH 172 S
  • Stadtvilla
  • 172,45 m² Wohn- u. Nutzfläche
  • 168,94 m² Wohn- u. Nutzfläche nach WoFIV
  • 5 Zimmer
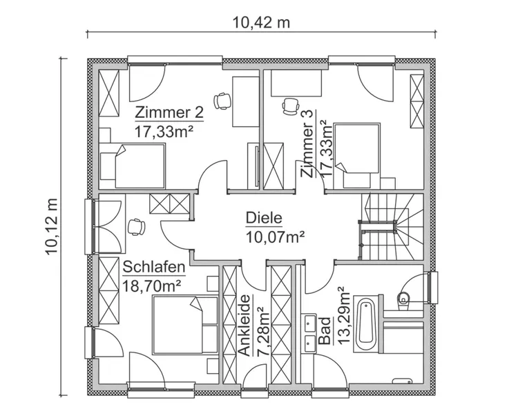
Erdgeschoss
stadtvilla-grundriss-sh172s-eg-ef9939f2
Obergeschoss
stadtvilla-grundriss-sh172s-og-7b12f378

Jetzt informieren: Aktuelle Themen aus unserem Hausbauratgeber

Berater vor Ort

Berater in Ihrer Nähe finden

Sie erreichen unsere fachkundigen Hausverkäufer deutschlandweit in über 50 Musterhäuser und Vertriebsbüros, welche gern Ihre ganz persönlichen Wünsche und Fragen beantworten.

Kostenfrei Fertighaus Katalog bestellen

Bestellen Sie kostenlos und unverbindlich unseren Hauskatalog für Ihr Traumhaus und erfahren Sie alles über ScanHaus Marlow.

Jetzt bestellen