Doppelhaus Fertighaus

Doppelhaus Fertighaus: SH 127 S DHH

nächstes Fertighaus
Fertighaus Doppelhaus Stadtvilla SH 127 S DHH
Doppelhaus Stadtvilla SH 127 S DHH

Abgebildete Häuser und Grundrisse können Sonderbauteile (z.B. Gaube, Erker) und -ausstattungen (z.B. Rollläden, zusätzliche Fenster) enthalten, Farbabweichungen sind möglich.

Beschreibung

Doppeltes Stadthaus

Das SH 127 S DHH – eine Stadtvilla, geplant als Doppelhaushälfte mit zwei vollwertigen Ebenen. Auffallend die geradläufige, platzsparende Treppe, die den Wohnbereich mit zwei doppelflügeligen Terrassentüren strikt vom Koch- und gegenüberliegenden Essbereich trennt. Gäste-WC und Hauswirtschaftsraum sind gleich über den Hauseingang vom kleinen Flur aus zu erreichen. Das Obergeschoss teilt sich über die Diele in zwei Hälften mit Schlafzimmer, zwei weiteren Zimmern und Bad - und ob die Zimmeraufteilung so bleibt, entscheiden Sie!

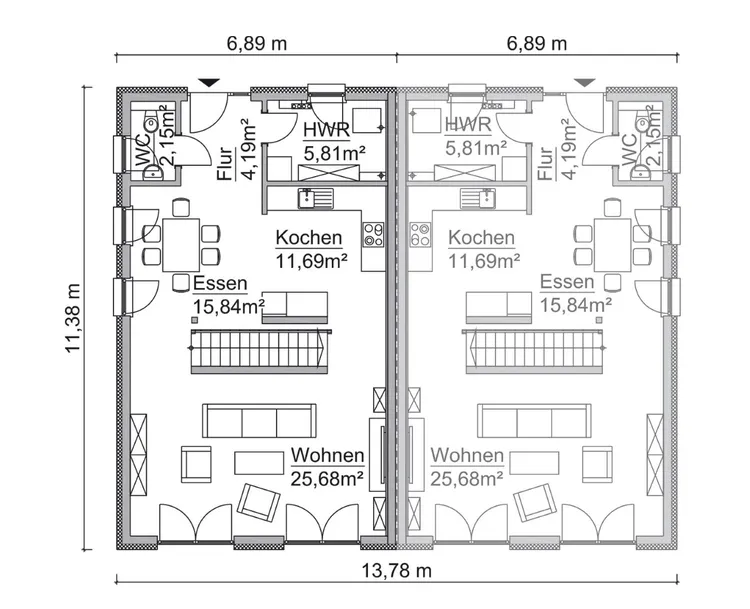
Grundrissbeispiel

Bei ScanHaus Marlow haben bereits viele Haustypen mehrere Grundrissvarianten. Sollte Ihnen keine Variante zusprechen, ist es selbstverständlich möglich den Grundriss nach Ihren individuellen Wünschen und Bedürfnissen in Abstimmung mit unseren Architekten anzupassen.

Grundrissbeispiel Doppelhaushälfte SH 127 S DHH
  • Doppelhaus
  • 126,42 m² Wohn- u. Nutzfläche
  • 123,41 m² Wohn- u. Nutzfläche nach WoFIV
  • 4 Zimmer
Erdgeschoss
doppelhaus-grundriss-sh127sdhh-eg-83066c62
Obergeschoss
doppelhaus-grundriss-sh127sdhh-og-cbe29b8a

Jetzt informieren: Aktuelle Themen aus unserem Hausbauratgeber

Berater vor Ort

Berater in Ihrer Nähe finden

Sie erreichen unsere fachkundigen Hausverkäufer deutschlandweit in über 50 Musterhäuser und Vertriebsbüros, welche gern Ihre ganz persönlichen Wünsche und Fragen beantworten.

Kostenfrei Fertighaus Katalog bestellen

Bestellen Sie kostenlos und unverbindlich unseren Hauskatalog für Ihr Traumhaus und erfahren Sie alles über ScanHaus Marlow.

Jetzt bestellen