Bungalow Fertighäuser

Bungalow Fertighaus: SH 156 WB

nächstes Fertighaus
Fertighaus Winkelbungalow SH 156 WB
Winkelbungalow SH 156 WB

Abgebildete Häuser und Grundrisse können Sonderbauteile (z.B. Gaube, Erker) und -ausstattungen (z.B. Rollläden, zusätzliche Fenster) enthalten, Farbabweichungen sind möglich.

Beschreibung

Raum für Gemeinsamkeit und Privatsphäre

Das barrierefreie Wohnkonzept des SH 156 WB präsentiert sich mit einer interessanten Aufteilung des großzügigen Wohnbereichs mit Essplatz und Wohnküche inklusive möglicher Insellösung. Hier kann die gewohnte Küchenzeile als „Wand“ raumhoch geplant werden und integriert sich somit perfekt in den Wohnbereich. Ein geräumiges Schlafzimmer mit dazugehöriger Ankleide wurde gleich neben dem Bad geplant. Ein weiteres Bad (!) mit Duschlösung liegt unmittelbar zwischen zwei Zimmern, welche eine in sich geschlossene Einheit bilden. Umweltfreundlich und Kosten sparend in die Zukunft: Durch eine optionale Photovoltaikanlage wird Sonnenenergie in Strom umgewandelt, damit sind Sie unabhängiger von steigenden Energiepreisen. Zudem ist diese förderfähig – fragen Sie gern unseren Architekten.

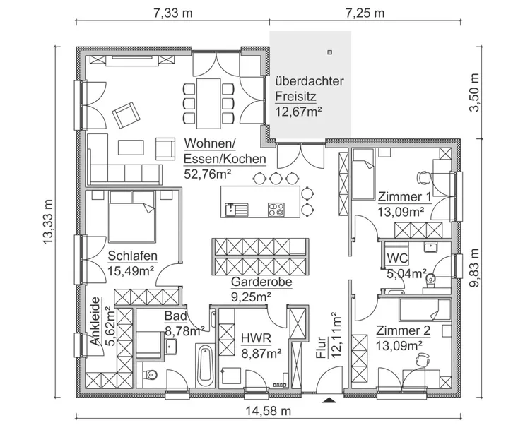
Grundrissbeispiel

Bei ScanHaus Marlow haben bereits viele Haustypen mehrere Grundrissvarianten. Sollte Ihnen keine Variante zusprechen, ist es selbstverständlich möglich den Grundriss nach Ihren individuellen Wünschen und Bedürfnissen in Abstimmung mit unseren Architekten anzupassen.

Grundrissbeispiel SH 156 WB
  • Bungalow
  • 156,77 m² Wohn- u. Nutzfläche
  • 147,27 m² Wohn- u. Nutzfläche nach WoFIV
  • 4 Zimmer
Erdgeschoss
bungalow-grundriss-sh156wb-bd3235fb

Jetzt informieren: Aktuelle Themen aus unserem Hausbauratgeber

Berater vor Ort

Berater in Ihrer Nähe finden

Sie erreichen unsere fachkundigen Hausverkäufer deutschlandweit in über 50 Musterhäuser und Vertriebsbüros, welche gern Ihre ganz persönlichen Wünsche und Fragen beantworten.

Kostenfrei Fertighaus Katalog bestellen

Bestellen Sie kostenlos und unverbindlich unseren Hauskatalog für Ihr Traumhaus und erfahren Sie alles über ScanHaus Marlow.

Jetzt bestellen