Bungalow Fertighäuser

Bungalow Fertighaus: SH 142 B - Var. A

nächstes Fertighaus
Fertighaus Bungalow SH 142 B - Var. A
Fertighaus Bungalow SH 142 B - Var. A
Referenzhaus Bungalow SH 142 B
Referenzhaus Bungalow SH 142 B

Abgebildete Häuser und Grundrisse können Sonderbauteile (z.B. Gaube, Erker) und -ausstattungen (z.B. Rollläden, zusätzliche Fenster) enthalten, Farbabweichungen sind möglich.

Beschreibung

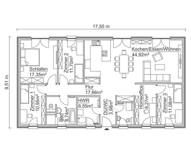
SH 142 B – Var. A - Viel Raum für die ganze Familie

Dieser moderne Bungalow bietet auf ca. 142 m² Wohnfläche eine 5-Zimmer-Lösung, die sowohl für eine Großfamilie als auch für individuelle Bedürfnisse – wie ein Zimmer für Gäste oder fürs Homeoffice – ideal ist. Der lange Flur mit Nische für mögliche Garderobe führt zu allen barrierefreien Zugängen. Das Herzstück des Hauses ist der offene Wohn- und Essbereich mit nahtlos integrierter Küche, der den aktuellen Wohntrend aufgreift und eine lichtdurchflutete, gemütliche Atmosphäre schafft. Große Fensterfronten lassen viel Tageslicht hinein und bieten einen schönen Blick auf den Garten. Neben einem Vollbad Bad ist ein Gäste-WC mit Duschlösung vorgesehen, besonders praktisch, wenn mehrere Personen im Haus wohnen oder Gäste übernachten. Vielseitige Nutzungsmöglichkeiten passen sich individuellen Bedürfnissen an. Dieses Haus überzeugt mit einer Planung, die Flexibilität und Wohnkomfort perfekt vereint.

Grundrissbeispiel

Bei ScanHaus Marlow haben bereits viele Haustypen mehrere Grundrissvarianten. Sollte Ihnen keine Variante zusprechen, ist es selbstverständlich möglich den Grundriss nach Ihren individuellen Wünschen und Bedürfnissen in Abstimmung mit unseren Architekten anzupassen.

Grundrissbeispiel SH 142 B - Var. A
  • Bungalow
  • 142,2 m² Wohn- u. Nutzfläche
  • 142,2 m² Wohn- u. Nutzfläche nach WoFIV
  • 5 (6) Zimmer
Erdgeschoss
bungalow-grundriss-sh142b-4c4e6f2c

Jetzt informieren: Aktuelle Themen aus unserem Hausbauratgeber

Berater vor Ort

Berater in Ihrer Nähe finden

Sie erreichen unsere fachkundigen Hausverkäufer deutschlandweit in über 50 Musterhäuser und Vertriebsbüros, welche gern Ihre ganz persönlichen Wünsche und Fragen beantworten.

Kostenfrei Fertighaus Katalog bestellen

Bestellen Sie kostenlos und unverbindlich unseren Hauskatalog für Ihr Traumhaus und erfahren Sie alles über ScanHaus Marlow.

Jetzt bestellen