1,5-Geschosser Fertighaus

1,5-Geschosser Fertighaus: SH 210

nächstes Fertighaus
Einfamilienhaus 1,5-Geschosser SH 210
Einfamilienhaus 1,5-Geschosser SH 210
Fertighaus 1,5 Geschosser Einfamilienhaus SH 210
Fertighaus 1,5 Geschosser SH 210

Abgebildete Häuser und Grundrisse können Sonderbauteile (z.B. Gaube, Erker) und -ausstattungen (z.B. Rollläden, zusätzliche Fenster) enthalten, Farbabweichungen sind möglich.

Beschreibung

Vielfalt für Ihr Zuhause

Im Erdgeschoss bietet das Haus drei Grundrissvarianten. Der Standard ist die 3-Zimmer-Lösung mit offenem Wohn-, Ess- und Kochbereich, einem zusätzlichen Zimmer sowie Schlafzimmer mit Ankleide. Wer noch mehr Weite wünscht, entscheidet sich für die 2-Zimmer-Variante, während die 4-Zimmer-Lösung zusätzlichen Platz für Familie, Gäste oder Homeoffice schafft. Ein Gäste-WC mit optionaler Dusche sowie ein Hausanschlussraum sind immer dabei.
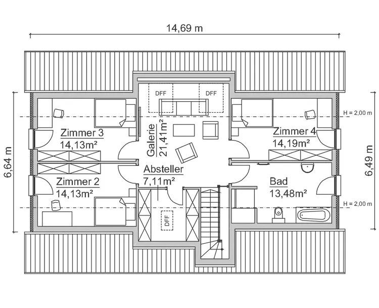
Im Dachgeschoss, welches für alle drei Varianten gleich ist, erwartet Sie eine durchdachte Planung: drei Zimmer, eine lichtdurchflutete Galerie, die sich zu einem weiteren Raum schließen lässt, ein Abstellraum und ein Vollbad. So entsteht ein Haus, das sich flexibel an Ihr Leben anpasst – heute und in Zukunft.

Dieses moderne Einfamilienhaus mit einer geringen Traufhöhe von unter 3,40m eignet sich besonders für Baugebiete mit entsprechenden Vorgaben. Besonders interessant auch für Bestandsbebauung. Das SH 210 hat dennoch einen erhöhten Kniestock von 1,25m.

Grundrissbeispiele

Bei ScanHaus Marlow haben bereits viele Haustypen mehrere Grundrissvarianten. Sollte Ihnen keine Variante zusprechen, ist es selbstverständlich möglich den Grundriss nach Ihren individuellen Wünschen und Bedürfnissen in Abstimmung mit unseren Architekten anzupassen.

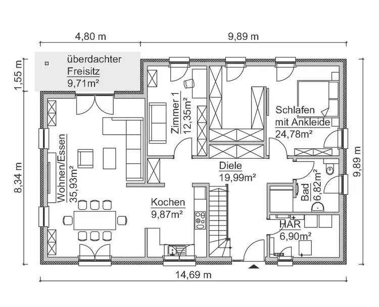
Grundrissbeispiel SH 210 mit 7 (8) Zimmern
  • 1,5-Geschosser
  • 210,67 m² Wohn- u. Nutzfläche
  • 185,07 m² Wohn- u. Nutzfläche nach WoFIV
  • 7 (8) Zimmer
Erdgeschoss
geschosser-grundriss-sh210-7-8zimmer-eg-84499be1
Dachgeschoss
geschosser-grundriss-sh210-standard-dg-cb017056
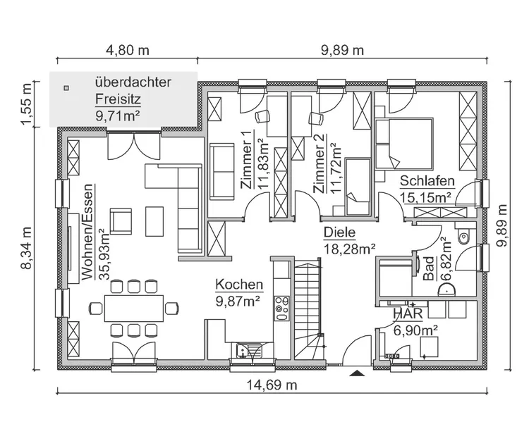
Grundrissbeispiel SH 210 mit 6 (7) Zimmern
  • 1,5-Geschosser
  • 210,80 m² Wohn- u. Nutzfläche
  • 185,19 m² Wohn- u. Nutzfläche nach WoFIV
  • 6 (7) Zimmer
Erdgeschoss
geschosser-grundriss-sh210-6-7zimmer-eg-f079fb0c
Dachgeschoss
geschosser-grundriss-sh210-standard-dg-cb017056
Grundrissbeispiel SH 210 mit 5 (6) Zimmern
  • 1,5-Geschosser
  • 211,63 m² Wohn- u. Nutzfläche
  • 186,03 m² Wohn- u. Nutzfläche nach WoFIV
  • 5 (6) Zimmer
Erdgeschoss
geschosser-grundriss-sh210-5-6zimmer-eg-883dcb14
Dachgeschoss
geschosser-grundriss-sh210-standard-dg-cb017056

Jetzt informieren: Aktuelle Themen aus unserem Hausbauratgeber

Berater vor Ort

Berater in Ihrer Nähe finden

Sie erreichen unsere fachkundigen Hausverkäufer deutschlandweit in über 50 Musterhäuser und Vertriebsbüros, welche gern Ihre ganz persönlichen Wünsche und Fragen beantworten.

Kostenfrei Fertighaus Katalog bestellen

Bestellen Sie kostenlos und unverbindlich unseren Hauskatalog für Ihr Traumhaus und erfahren Sie alles über ScanHaus Marlow.

Jetzt bestellen