ScanHaus Marlow Fertighäuser

1,5-Geschosser Fertighaus: SH 152 Drempel

nächstes Fertighaus
1,5-Geschosser SH 152 Drempel inkl. Panoramaverglasung
1,5-Geschosser SH 152 Drempel inkl. Panoramaverglasung
kniestock-1500x940_1_sh-152-d.jpg

Abgebildete Häuser und Grundrisse können Sonderbauteile (z.B. Gaube, Erker) und -ausstattungen (z.B. Rollläden, zusätzliche Fenster) enthalten, Farbabweichungen sind möglich.

Beschreibung

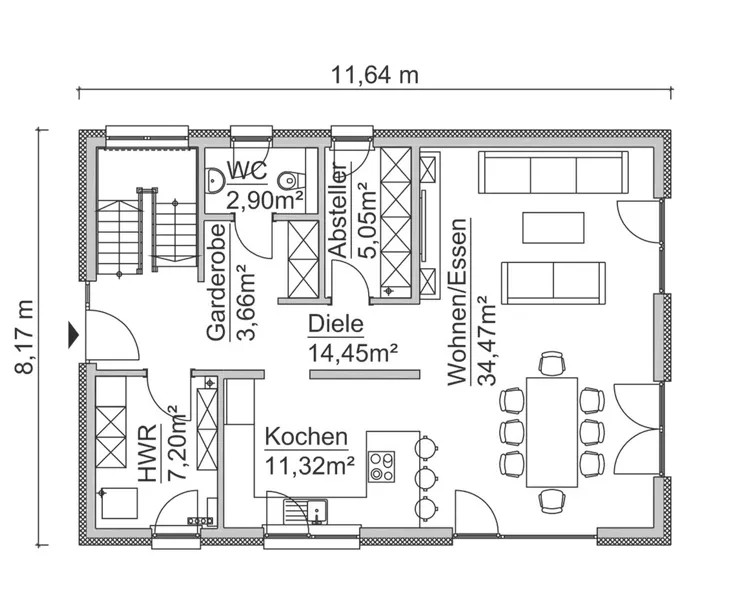
Der Vorteil von Drempelhäusern ist gemeinhin bekannt: der erhöhte Kniestock von 2 Metern (gemessen ab Oberkante Estrich) bietet deutlich mehr Stellmöglichkeiten für Ihr Mobiliar, als in herkömmlichen 1,5-Geschossern. Zudem wirkt das Dachgeschoss durch diese Erhöhung großräumiger. Unser Drempelhaus SH 152 D bietet Ihnen auf insgesamt 152,32 m² Wohnfläche einen offenen Wohnbereich im Erdgeschoss mit integrierter Küche und ausreichend Platz für einen großen Esstisch. Der HWR, eine Abstellkammer sowie das Gäste-WC befinden sich ebenfalls im EG und sind über den Flur erreichbar. Es wurde auch an eine praktische Garderobennische vor dem Gäste-WC gedacht.

Über die halbgewendelte Treppe erreichen Sie drei Zimmer im Dachgeschoss, welche alle ähnlich groß mit jeweils ca. 17 m² geschnitten sind. Das Masterbad oben ist vom Flur aus für von allen drei Zimmern gleich gut zu erreichen.

 

Die Besonderheiten hier noch einmal zusammengefasst:

  • Drempelhöhe 2,00 m
  • Fenster im Drempel
  • Panoramaverglasungen sowie Verglasung Treppenhaus
  • begehbare Garderobe und Abstellraum im EG
  • Treppe ½-gewendelt mit Podest

Die technischen Details:

  • Drempelhöhe 2,00 m ab OK Estrich
  • Haus-Außenmaß 11,64 x 8,17 m
  • Dachneigung beträgt 25°
  • Traufdachüberstand 0,42 m

Grundrissbeispiel

Bei ScanHaus Marlow haben bereits viele Haustypen mehrere Grundrissvarianten. Sollte Ihnen keine Variante zusprechen, ist es selbstverständlich möglich den Grundriss nach Ihren individuellen Wünschen und Bedürfnissen in Abstimmung mit unseren Architekten anzupassen.

GRUNDRISSBEISPIEL SH 152 D
  • 1,5-Geschosser
  • 152,51 m² Wohn- u. Nutzfläche
  • 147,97 m² Wohn- u. Nutzfläche nach WoFIV
  • 4 Zimmer
Erdgeschoss
geschosser-grundriss-sh152d-eg-76c75f38
Dachgeschoss
geschosser-grundriss-sh152d-og-441ce43d

Jetzt informieren: Aktuelle Themen aus unserem Hausbauratgeber

Berater vor Ort

Berater in Ihrer Nähe finden

Sie erreichen unsere fachkundigen Hausverkäufer deutschlandweit in über 50 Musterhäuser und Vertriebsbüros, welche gern Ihre ganz persönlichen Wünsche und Fragen beantworten.

Kostenfrei Fertighaus Katalog bestellen

Bestellen Sie kostenlos und unverbindlich unseren Hauskatalog für Ihr Traumhaus und erfahren Sie alles über ScanHaus Marlow.

Jetzt bestellen